平日は街の中でカフェを営む店舗併用住宅。シンプルで快適な生活空間を持ちながら、平日は地元の人々や観光客にリラックスしたひとときを提供します。そして週末になると、家族でキッチントレーラーに乗り込み、イベントに出店。地元のフェスやマーケットで自慢の料理やスイーツを販売しながら、家族の時間を楽しみつつ、地域とのつながりを深めるライフスタイルを実現します。住むだけでなく、暮らしを楽しむ新しい選択肢を提案します。

1階 平面図


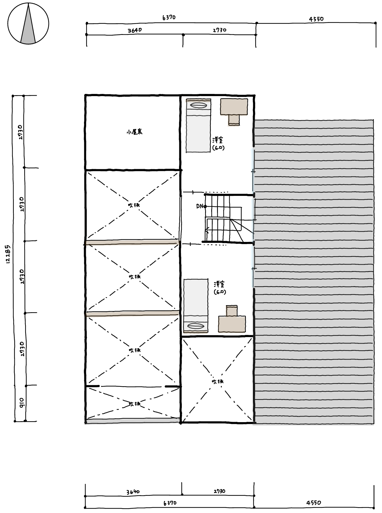
2階 平面図


立面図

断面図
モニター募集

「TENPO_HOUSE」のモニター募集してます!
TENPO_HOUSEのお家づくり&お店づくりについてのご質問&ご相談を受付中です。
ご相談は無料です!いただいたお問い合わせには、2営業日以内に担当者からご連絡いたします。
Gmail、Yahoo!メール、hotmail等のフリーメールをご利用の場合、当社からのメールが
迷惑メールフォルダに入ってしまう場合がございますのでご注意くださいませ。

